31 Greystone #31, Shelton, CT 06484 (MLS # 24154843)

31 Greystone #31, Shelton, CT 06484 (MLS # 24154843)


Save to Favorites
Print
Share

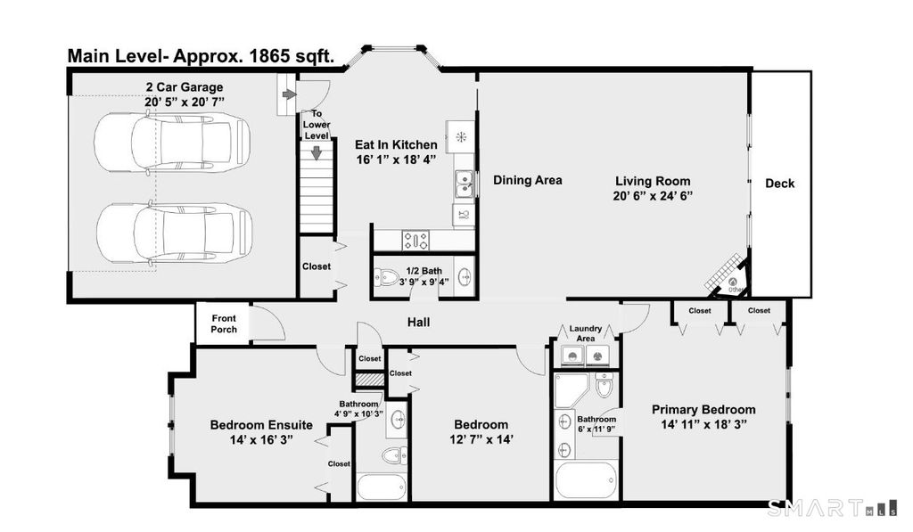
Welcome to Greystone on the Lake, a highly sought-after community offering stunning, one-level living at it's best. This elegant ranch, end unit, features convenient entry with only a few steps from both the attached 2-car garage and front door. The open floor plan showcases soaring volume ceilings, gleaming hardwood floors, clean neutral interior paint, and newer carpeting in all bedrooms. The beautifully updated kitchen features new granite countertops, new tiled backsplash, new sink faucets, new gas oven range, new dishwasher, new microwave, and newer refrigerator. The spacious primary suite offers abundant closets and a luxurious bath with whirlpool tub, walk-in shower, and double-sink vanity. Enjoy peaceful, wooded views from the private deck accessed through sliders from the living room. The living room also has a recently commissioned custom oak trim surrounding the gas fireplace. Main level laundry includes both washer and dryer. A huge walk-out basement provides exceptional storage or future living space. Quiet cul-de-sac location with a short walk to the pool completes this exceptional offering. Please read agent to agent remarks prior to submitting an offer.

DAYS ON MARKET 1 LAST UPDATED 3/6/2026
YEAR BUILT 1998 GARAGE SPACES 2.0
COUNTY Fairfield STATUS Active
PROPERTY TYPE(S) Condo/Townhouse/Co-Op

SCHOOLS
Elementary School Mohegan
Jr. High School Shelton
High School Shelton


ADDITIONAL DETAILS
AIR Central Air
AIR CONDITIONING Yes
AMENITIES Snow Removal, Trash
APPLIANCES Dishwasher, Dryer, Gas Range, Gas Water Heater, Microwave, Refrigerator, Washer
BASEMENT Full, Storage Space, Unfinished, Walk-Out Access, Yes
CONSTRUCTION Frame, Vinyl Siding
FIREPLACE Yes
GARAGE Attached Garage, Yes
HEAT Forced Air, Natural Gas
HOA DUES 490
INTERIOR Open Floorplan
LOT 0
LOT DESCRIPTION Wooded
PARKING Attached
POOL DESCRIPTION Outdoor Pool, In Ground
SEWER Public Sewer
STORIES 2
STYLE Ranch
TAXES 4988
WATER Public
ZONING R-1
MORTGAGE CALCULATOR
   

TOTAL MONTHLY PAYMENT

0
P
I
*Estimate only

SATELLITE VIEW



 
CONTACT US ABOUT 31 GREYSTONE #31
 / 
We respect your online privacy and will never spam you. By submitting this form with your telephone number you are consenting for Madhu Reddy to contact you even if your name is on a Federal or State "Do not call List".

Listing courtesy of Real Estate Two
Copyright Smart MLS. All rights reserved. Information is deemed reliable but not guaranteed to be accurate.

This IDX solution is (c) Diverse Solutions 2026.